Foto levereras av Google Street View och kan vara oprecist:

Kontor att hyra, Sollentuna, Kyrkvägen

Kyrkvägen, Sollentuna
  • Kontor att hyra
  • Ca. 80 m2
  • Ca. 11 000 kr. per månad
Kontor att hyra, Sollentuna, Kyrkvägen
Kyrkvägen, Sollentuna
  • Kontor att hyra
  • Ca. 80 m2
  • Ca. 11 000 kr. per månad
FÅ MER INFO OM LOKALEN
Du länkas till en annan portal, som kan kan kräva betalning eller skapande av en använderprofil

Kontor att hyra, Sollentuna, Kyrkvägen

Fakta

  • 569477
  • Kontor
  • Klinik
  • 3.1.2027
  • Ca. 80 m2
  • Ca. 132 000 kr.
  • Ca. 11 000 kr.
  • Ca. 1 500 kr.
  • 2
  • 4

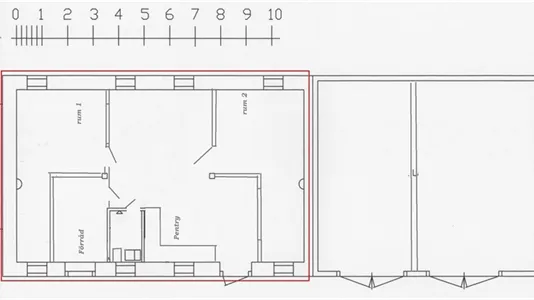
Charmigt kontor i ombyggt grishus – 80 m² Egen entré

Nu finns möjlighet att hyra ett trivsamt och karaktärsfullt kontor om 80 m² i det gamla grishuset.
Lokalen erbjuder en inspirerande miljö med egen entré i ett eget hus.

Lokalen erbjuder:
* Två kontorsrum med parkettgolv och fönster i fasaden
* Stora fönster från kontorsrummen in mot den öppna ytan, perfekt för utställning, möten eller gemensam arbetsyta
* Pentry direkt innanför entrén, utrustat med diskmaskin, kylskåp och golv med klinker.
* Helkaklad WC med dusch
* Golvvärme i hela lokalen för hög komfort året runt
* FTX-ventilation
* Fiberanslutning via Sollentunastadsnät

En trivsam och funktionell lokal som passar utmärkt för mindre företag, konsulter eller kreativ verksamhet.
Välkommen att kontakta oss för mer information eller för att boka visning!