Foto levereras av Google Street View och kan vara oprecist:
Kontor att hyra, Järfälla,
, Järfälla- Kontor att hyra
- 73 m2
, Järfälla
- Kontor att hyra
- 73 m2
FÅ MER INFO OM LOKALEN
Du länkas till en annan portal, som kan kan kräva betalning eller skapande av en använderprofil
Kontor att hyra, Järfälla,
Fakta
- 532366
- Kontor
- 73 m2
- Inte angivet
FÅ MER INFO OM LOKALEN
Du länkas till en annan portal, som kan kan kräva betalning eller skapande av en använderprofil
Kontor att hyra i Järfälla
Nu finns möjlighet att hyra en trivsam och välbelägen lokal inne i Viksjö Centrum i Järfälla!
Perfekt för butik eller showroom eller annan verksamhet som passar i ett köpcentrum.
Lokalen är granne med Systembolaget vilket ger god exponering och ett naturligt kundflöde.
(Vissa bilder är från tidigare hyresgäst)
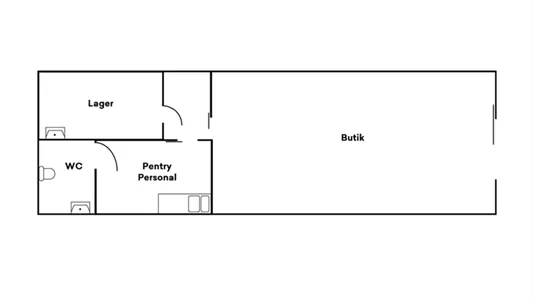
Stor öppen butiks-/utställningsyta, personaldel med pentry, lager och RWC.
Tillgång till kundparkering precis intill centrumet.
Viksjö Centrum är ett levande närcentrum i Järfälla kommun – en av de snabbast växande kommunerna i Stockholms län. Här samsas småbutiker och service med starka varumärken som ICA, Systembolaget, Apotek Hjärtat, Apoteket, Folktandvården, Capio, Vivels Café och Arken Zoo.
En perfekt plats för verksamhet med närhet till både vardagsservice och flöde av besökare.
Ej lämplig för restaurang, café eller frisörverksamhet.
Viksjö Centrum
Yta: ca 73 m²
Hyra: ca 18 250:- /mån ex moms
Fastighetsskatt: 6 077:- / mån ex moms
Tillträde omgående eller enligt överenskommelse.
Hyresdeposition kommer begäras.
Se över var lokalen är belägen innan vi bokar visning.
Kontakta Michel Rydberg via mail för bokning av visning.
Group AB • michel@.se
Perfekt för butik eller showroom eller annan verksamhet som passar i ett köpcentrum.
Lokalen är granne med Systembolaget vilket ger god exponering och ett naturligt kundflöde.
(Vissa bilder är från tidigare hyresgäst)
Stor öppen butiks-/utställningsyta, personaldel med pentry, lager och RWC.
Tillgång till kundparkering precis intill centrumet.
Viksjö Centrum är ett levande närcentrum i Järfälla kommun – en av de snabbast växande kommunerna i Stockholms län. Här samsas småbutiker och service med starka varumärken som ICA, Systembolaget, Apotek Hjärtat, Apoteket, Folktandvården, Capio, Vivels Café och Arken Zoo.
En perfekt plats för verksamhet med närhet till både vardagsservice och flöde av besökare.
Ej lämplig för restaurang, café eller frisörverksamhet.
Viksjö Centrum
Yta: ca 73 m²
Hyra: ca 18 250:- /mån ex moms
Fastighetsskatt: 6 077:- / mån ex moms
Tillträde omgående eller enligt överenskommelse.
Hyresdeposition kommer begäras.
Se över var lokalen är belägen innan vi bokar visning.
Kontakta Michel Rydberg via mail för bokning av visning.
Group AB • michel@.se
Information och data
Denna lokal ligger på Viksjö Centrum, Viksjöplan i Järfälla. Järfälla ligger i kommunen Järfälla, som ligger i Stockholms län. Lokalen är totalt 73 m2.