Foto levereras av Google Street View och kan vara oprecist:
Lager att hyra, Knivsta, Mejselgatan
Mejselgatan, Knivsta- Lager att hyra

Mejselgatan, Knivsta
- Lager att hyra
FÅ MER INFO OM LOKALEN
Du länkas till en annan portal, som kan kan kräva betalning eller skapande av en använderprofil
Lager att hyra, Knivsta, Mejselgatan
Fakta
- 528451
- Lager
- Industrilokal
- Kontorshotell
- Ja
- Ja
- 4 - 12 m2
FÅ MER INFO OM LOKALEN
Du länkas till en annan portal, som kan kan kräva betalning eller skapande av en använderprofil
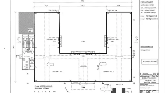
Flexibel lagerlokal uthyres i Knivsta – upp till 1 400 kvm
UTHYRES: Lagerlokal om 400–1 400 kvm i expansiva Knivsta – tidigare padelhall
Letar du efter en flexibel och rymlig lokal med bästa läge? Nu finns möjligheten att hyra en tidigare padelhall med upp till 1 400 kvm anpassningsbar yta – perfekt för lager, logistik, lätt industri, fordon eller annan verksamhet som kräver yta och höjd.
Fakta:
Yta: 400–1 400 kvm (delningsbar)
Takhöjd: ca 10 meter
Parkering: Gott om parkeringsplatser i direkt anslutning
Anpassningar: Möjlighet att påverka storlek och utförande
Tillgänglig: Omgående
Hyra: Enligt överenskommelse
Läge:Lokalen är strategiskt belägen på Mejselgatan i Knivsta – med endast 2 min till E4:an, 10 min till Arlanda och 20 min till Uppsala. I närområdet finns bland annat, Circle K och Nova Park Hotell. Knivsta Centrum ligger 2 km bort med tåg- och bussförbindelser.
Omgivning & kommunikationer:
Bussterminal med linje 801 till Arlanda/Uppsala
Lokaltrafik till Knivsta C och Alsike
Cykelväg från Uppsala på under en timme
Nära service, bensinstation, restauranger
Det här är ett utmärkt tillfälle för dig som söker en lokal med god tillgänglighet, flexibla möjligheter och starkt läge.
Kontakta Jesse Singh – – för visning eller mer information.
Letar du efter en flexibel och rymlig lokal med bästa läge? Nu finns möjligheten att hyra en tidigare padelhall med upp till 1 400 kvm anpassningsbar yta – perfekt för lager, logistik, lätt industri, fordon eller annan verksamhet som kräver yta och höjd.
Fakta:
Yta: 400–1 400 kvm (delningsbar)
Takhöjd: ca 10 meter
Parkering: Gott om parkeringsplatser i direkt anslutning
Anpassningar: Möjlighet att påverka storlek och utförande
Tillgänglig: Omgående
Hyra: Enligt överenskommelse
Läge:Lokalen är strategiskt belägen på Mejselgatan i Knivsta – med endast 2 min till E4:an, 10 min till Arlanda och 20 min till Uppsala. I närområdet finns bland annat, Circle K och Nova Park Hotell. Knivsta Centrum ligger 2 km bort med tåg- och bussförbindelser.
Omgivning & kommunikationer:
Bussterminal med linje 801 till Arlanda/Uppsala
Lokaltrafik till Knivsta C och Alsike
Cykelväg från Uppsala på under en timme
Nära service, bensinstation, restauranger
Det här är ett utmärkt tillfälle för dig som söker en lokal med god tillgänglighet, flexibla möjligheter och starkt läge.
Kontakta Jesse Singh – – för visning eller mer information.
Service:
Aircondition, Bredband, Företagsadress, Förvaringsutrymme, Kopieringsmaskin, Kök/lunchrum, Möblerat, Parkeringsplatser, Receptionist, Skrivare, Städning
Information och data
Denna lokal, som även kan användas till Industrilokal eller Kontorshotell, ligger på Mejselgatan i Knivsta. Knivsta ligger i kommunen Knivsta, som ligger i Uppsala län. Lokalen är totalt 1500 m2.