Foto levereras av Google Street View och kan vara oprecist:

Lager att hyra, Gävle, Krickvägen 20

Krickvägen 20, Gävle
  • Lager att hyra
  • 860 m2
Lager att hyra, Gävle, Krickvägen 20
Krickvägen 20, Gävle
  • Lager att hyra
  • 860 m2
FÅ MER INFO OM LOKALEN
Du länkas till en annan portal, som kan kan kräva betalning eller skapande av en använderprofil

Lager att hyra, Gävle, Krickvägen 20

Fastpartner
Christopher Johansson
tlf: 08-4023460
Se e-postadressxxxxxxxxxxxxxxx

PRO-HYRESVÄRD

Läs mer

Läs om hyresvärd

Fakta

  • 584443
  • Lager
  • 860 m2
  • Inte angivet

Ledig lokal på Näringen

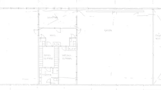
Ledig lokal på Näringen, passande för lager, logistik, produktion, lättare industi. Takhöjd ca 5 meter.Flera portar in till lokalen, pentry, kontor och omklädningsrum.Lokalen finns tillgänglig från januari 2027.Öppen eller rumsindeladIndustriområdet har bra anslutning till E4:an via Hamnleden, avståndet till E4:an är ca 4,5 km.Hitta hit med X trafikParkering finns på området.Enligt överenskommelseFastpartner är ett börsnoterat fastighetsbolag som äger och förvaltar fastigheter långsiktigt med egen personal. Vår affärsidé är att skapa goda och långvariga relationer med våra hyresgäster genom att vara lyhörda för våra hyresgästers önskemål samt engagerade i förvaltningen och utvecklingen av våra fastigheter. Vårt fastighetsbestånd är koncentrerat till Stockholm, men vi har också lokaler på ett flertal expansiva orter i Sverige, bla Göteborg, Malmö, Norrköping, Uppsala och Gävle. Vi tycker det är kul att arbeta med den tekniska utvecklingen av våra fastigheter. Vi ser att det både finns en vinning för miljön och plånboken i att vara en engagerad hyresvärd. Vår organisation genomsyras av en entreprenörsanda och har korta beslutsvägar vilket uppskattas av våra hyresgäster. Välkommen till Fastpartner!Fastigheten är belägen i Näringens industriområde, ca 2 km nordöst om Gävles mest centrala delar.

Information och data

Denna lokal ligger på Krickvägen i Gävle. Gävle ligger i kommunen Gävle, som ligger i Gävleborg. Lokalen är totalt 860 m2.