Foto levereras av Google Street View och kan vara oprecist:

Kontor att hyra, Vallentuna, Tuna Torg 2-4

Tuna Torg 2-4, Vallentuna
  • Kontor att hyra
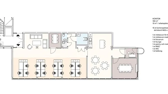
  • 190 m2
Kontor att hyra, Vallentuna, Tuna Torg 2-4
Tuna Torg 2-4, Vallentuna
  • Kontor att hyra
  • 190 m2
FÅ MER INFO OM LOKALEN
Du länkas till en annan portal, som kan kan kräva betalning eller skapande av en använderprofil

Kontor att hyra, Vallentuna, Tuna Torg 2-4

Fastpartner
Christopher Johansson
tlf: 08-4023460
Se e-postadressxxxxxxxxxxxxxxx

PRO-HYRESVÄRD

Läs mer

Läs om hyresvärd

Fakta

  • 567278
  • Kontor
  • 190 m2
  • Inte angivet

Tuna Torg 2-4

Top floor-kontor i Vallentuna Centrum.Nu finns möjligheten att etablera er verksamhet i attraktiva kontorslokaler om ca 190 kvm högst upp i huset, mitt i Vallentuna Centrum. Här sitter ni med närhet till service, handel, restauranger och all tänkbar vardagsservice ett perfekt läge för både medarbetare och besökare.Kommunikationerna är mycket goda med Roslagsbanan som tar er till Stockholm Östra på ca 30 minuter samt flera busslinjer i direkt anslutning. För den som pendlar med bil finns goda parkeringsmöjligheter i området.Fastigheten genomgår just nu en omfattande upprustning, vilket ger er en unik möjlighet att flytta in i helt nyrenoverade, moderna och fräscha kontor. Lokalerna anpassas i dialog med er som hyresgäst, vilket innebär att ni har goda möjligheter att påverka planlösning och utformning efter verksamhetens behov.Här skapar vi effektiva och trivsamma arbetsplatser med fokus på kvalitet, flexibilitet och långsiktighet.Välkommen att kontakta oss för mer information eller för att boka en visning!Ca 1 minuts promenad från Vallentuna station och Roslagsbanan som tar dig till Östermalm på 30 minuter. Buss 610 mellan Danderyds sjukhus och Vallentuna stannar utanför.Hitta hit med SLFastigheten ligger mitt i Vallentuna centrum. Här finns förutom ICA, Coop och Systembolaget även restaunger som Bores, Misoras Sushi och Brödernas.Enligt överenskommelseFastpartner är ett börsnoterat fastighetsbolag som äger och förvaltar fastigheter långsiktigt med egen personal. Vår affärsidé är att skapa goda och långvariga relationer med våra hyresgäster genom att vara lyhörda för våra hyresgästers önskemål samt engagerade i förvaltningen och utvecklingen av våra fastigheter. Vårt fastighetsbestånd är koncentrerat till Stockholm, men vi har också lokaler på ett flertal expansiva orter i Sverige, bla Göteborg, Malmö, Norrköping, Uppsala och Gävle. Vi tycker det är kul att arbeta med den tekniska utvecklingen av våra fastigheter. Vi ser att det både finns en vinning för miljön och plånboken i att vara en engagerad hyresvärd. Vår organisation genomsyras av en entreprenörsanda och har korta beslutsvägar vilket uppskattas av våra hyresgäster. Välkommen till Fastpartner!Fastigheten är ett 3 vånings hus med butikslokaler i markplan. Det finns hiss och trapphus vid varje port.Fastigheten ligger mitt i Vallentuna centrum. Detta är Vallentuna kommuns centrum hjärta. Här finner man flera olika matbutiker och restauranger. Det finns flera oilka affärer och även bowlinghall.

Information och data

Denna lokal ligger på Tuna Torg i Vallentuna. Vallentuna ligger i kommunen Vallentuna, som ligger i Stockholms län. Lokalen är totalt 190 m2.