Foto levereras av Google Street View och kan vara oprecist:

Kontor att hyra, Västerort, Norgegatan 1

Norgegatan 1, Stockholm Västerort
  • Kontor att hyra
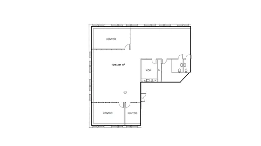
  • 244 m2
  • 34 567 kr. per månad
Kontor att hyra, Västerort, Norgegatan 1
Norgegatan 1, Stockholm Västerort
  • Kontor att hyra
  • 244 m2
  • 34 567 kr. per månad
FÅ MER INFO OM LOKALEN
Du länkas till en annan portal, som kan kan kräva betalning eller skapande av en använderprofil

Kontor att hyra, Västerort, Norgegatan 1

ADR Fastighetsförvaltning AB
Glenn Rickardsson
tlf: +46 (0) 76 496 42 44
Se e-postadressxxxxxxxxxxxxxxx

PRO-HYRESVÄRD

Läs mer

Läs om hyresvärd

Fakta

  • 584602
  • Kontor
  • Coworking
  • Klinik
  • 244 m2
  • 414 800 kr.
  • 34 567 kr.
  • 1 700 kr.

Lokal uthyres på Norgegatan 1 i Kista

Nu finns möjlighet att hyra en flexibel lokal i ett bra läge i Kista.

Lokalen passar utmärkt för exempelvis för hälsovård, yogastudio eller annan liknande verksamhet.

Lokalen erbjuder:
- Kök
- Två toaletter
- Flera kontorsytor
- Möjlighet till hyresgästanpassning

Fastigheten har goda parkeringsmöjligheter och ligger nära kollektivtrafik med gångavstånd till Kista centrum och tunnelbanestation.
I närområdet finns förskolor, fotbollsplan och serviceutbud, inklusive Kista Galleria.

Kontakta oss för mer information eller visning.

Service: Konferensrum, Kök/lunchrum, Parkeringsplatser