Foto levereras av Google Street View och kan vara oprecist:

Kontor att hyra, Solna, Telegrafgatan 4

Telegrafgatan 4, Solna
  • Kontor att hyra
  • 760 m2
Kontor att hyra, Solna, Telegrafgatan 4
Telegrafgatan 4, Solna
  • Kontor att hyra
  • 760 m2
FÅ MER INFO OM LOKALEN
Du länkas till en annan portal, som kan kan kräva betalning eller skapande av en använderprofil

Kontor att hyra, Solna, Telegrafgatan 4

Fastpartner
Christopher Johansson
tlf: 08-4023460
Se e-postadressxxxxxxxxxxxxxxx

PRO-HYRESVÄRD

Läs mer

Läs om hyresvärd

Fakta

  • 555389
  • Kontor
  • 760 m2
  • Inte angivet

T O P P L Ä G E - K O N T O R

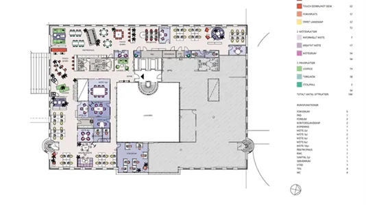
Rymlig och modern kontorslokal i ett attraktivt och tryggt område. Närhet till kommunikationer och service. Gott om parkeringKontorslokal 760 kvm – Toppläge i Centrala Frösunda.Välkommen till denna rymliga och moderna kontorslokal i ett attraktivt och tryggt område.Perfekt för företag som som söker en strategisk placering med närhet till kommunikationer och service.Gott om parkering och ett grymt bra skyltläge mot E4:an.Öppen eller rumsindelat. Kontoret erbjuder ett effektivt och flexibelt kontorsplan på en totalyta om 760 kvm. Här får ni möjlighet att påverka och anpassa lokalernas utformning för att skapa en skräddarsydd kontorslösning som möter verksamhetens behov.Ett av Stockholms bästa kommunikationsläge.Ett enbytesläge, 500 m från Solna station. Det är 7 minuter från T-centralen, 4 minuter från Odenplan med pendeltåg.Bussar i närheten.Med bil ligger det intill E4:an.Det finns dessutom gott om cykelbanor i alla riktningar.Bra access till Arlanda via pendeltåg och flygbussar.Hitta hit med SLI fastighetens entréplan finns gemensamt konferensrum och lounge.Utanför dörren finns ett stort antal butiker, restauranger, mataffär, gym, apotek och bank. Urbant med en vinnande lokal tvist.6-7 minuter till Westfield Mall of Scandinavia med ett överflöd av butiker, restauranger och nöjen.Garageplats med eller utan laddning kan hyras i fastigheten med hiss direkt upp till kontoret.Enligt överenskommelseKontoren är moderna och ett vackert atrium ger rikligt ljusinsläpp till alla våningsplan. Planlösningarna är genomgående öppna och flexibla.På entréplanet finns ett tjugotal loungeplatser och en kaffemaskin som ni som hyresgäster disponerar över. Här hittar du också ett fullt utrustat konferensrum, med plats för möten på upp till 12 personer.I källaren finns ett låst cykelrum med gör-det-själv-service för din cykel samt omklädningsrum och dusch.Byggnaden är certifierad BREEAM In-Use Very Good.Sveriges snabbast växande område för företag och organisationer. Centrala Frösunda ligger i det som med rätta anses vara Stockholms andra city. Här arbetar idag nästan 40 000 personer.Mixen av företag, boende och service i Centrala Frösunda skapar en levande och trygg miljö. På bekvämt gångavstånd finns Strawberry Arena och det riktigt stora publik upplevelserna samt den gröna oasen Hagaparken.Kontorsläget är av innerstadskaraktär här får du mer av den känslan än någon annanstans utanför tullarna.

Information och data

Denna lokal ligger på Telegrafgatan i Solna. Solna ligger i kommunen Solna, som ligger i Stockholms län. Lokalen är totalt 760 m2.