Foto levereras av Google Street View och kan vara oprecist:

Kontor att hyra, Karlstad, Rudsvägen

Rudsvägen, Karlstad
  • Kontor att hyra
  • Ca. 340 m2
  • Ca. 36 000 kr. per månad
Kontor att hyra, Karlstad, Rudsvägen
Rudsvägen, Karlstad
  • Kontor att hyra
  • Ca. 340 m2
  • Ca. 36 000 kr. per månad
FÅ MER INFO OM LOKALEN
Du länkas till en annan portal, som kan kan kräva betalning eller skapande av en använderprofil

Kontor att hyra, Karlstad, Rudsvägen

Fakta

  • 584600
  • Kontor
  • Butikslokal
  • Ca. 340 m2
  • Ca. 433 500 kr.
  • Ca. 36 000 kr.
  • Ca. 1 500 kr.
  • 2

Potentialfylld lokal i populärt område.

En stor och öppen lokal på det populära området Norrstrand. Lokalen har idag en öppen planlösning och därmed potential att formas efter er verksamhet.
Utöver grundhyran tillkommer kostnader för F-skatt, hushållsel, renhållningskostnader och eventuellt fibernätverk.

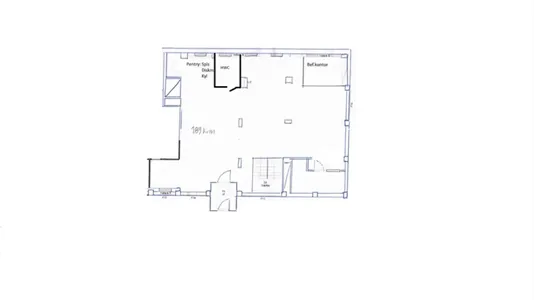
Entréplan (189kvm) består av till största del en öppen yta, men där också ett litet pentry, WC och ett befintligt kontor ingår.

Källarplan (150kvm) består också mest av en öppen yta, men där ingår även ett förråd, en städskrubb och duschutrymmen. Delen VVS och EL tillhör inte lokalen men Fastighetsägaren behöver tillgång till den ytan via lokalen.

Lokalen är ej anpassad för restaurangverksamhet.