Foto levereras av Google Street View och kan vara oprecist:
Lediga lokaler att hyra, Karlstad,
, Karlstad- Lediga lokaler att hyra
, Karlstad
- Lediga lokaler att hyra
FÅ MER INFO OM LOKALEN
Du länkas till en annan portal, som kan kan kräva betalning eller skapande av en använderprofil
Lediga lokaler att hyra, Karlstad,
Fakta
- 367859
- Lediga lokaler
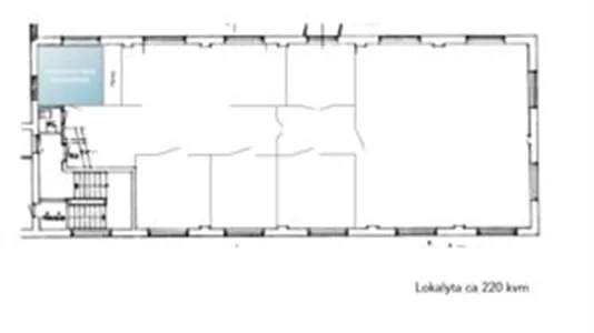
- 220 - −1 m2
- Inte angivet
FÅ MER INFO OM LOKALEN
Du länkas till en annan portal, som kan kan kräva betalning eller skapande av en använderprofil
Tjärngatan 16
Kontorslokal i unik miljö i Bröderna Wästlunds gamla industribyggnad från 1919. Lokalen är belägen på plan två och nås med trappor, ingen hiss.
I lokalen finns WC, kök med pentry, rum i varierande storlek varav del av lokalen har full takhöjd.
Samtliga rum har stora fönster med fint ljusinsläpp och utsikt över Lambergstjärnen.
Vissa nivåskillnader/lutningar i golv förekommer.
Lokalen är anpassad för 15-20 personer.
Rum med full takhöjd
Mittgång – vy mot entrédörr
Kontor
Pentry/matplats
I lokalen finns WC, kök med pentry, rum i varierande storlek varav del av lokalen har full takhöjd.
Samtliga rum har stora fönster med fint ljusinsläpp och utsikt över Lambergstjärnen.
Vissa nivåskillnader/lutningar i golv förekommer.
Lokalen är anpassad för 15-20 personer.
Rum med full takhöjd
Mittgång – vy mot entrédörr
Kontor
Pentry/matplats
Information och data
Denna lokal ligger på Tjärngatan i Karlstad. Karlstad ligger i kommunen Karlstad, som ligger i Värmland.